Prospettivecasa il tuo punto di incontro
Italiano
2 Camere 1 Bagni 93,45 m2
Caratteristiche principali
Prezzo
165.000 EUR
Spese condominiali
1.959 EUR
Classe
VA
Locali
3
Mq Balcone
11,8
Altre caratteristiche e accessori
Stato Immobile
Come da Origini
Grado
Medio
Posizione
Centro
Panorama
Vista Aperta
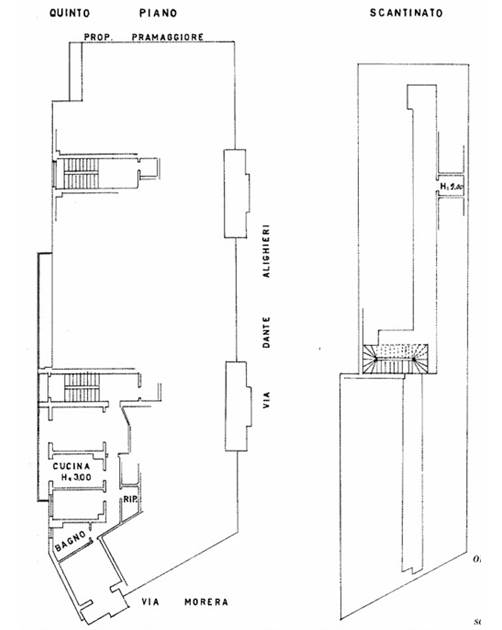
Piano
Quinto
Orientamento
Sud Est
Totale Piani
Cinque
Lati Liberi
2
Giardino
No
Arredi
Non Arredato
Tipo Soggiorno
Soggiorno
Tipo Cucina
Abitabile
Riscaldamento
Centralizzato
Tipo Riscaldam.
Caldaia
Tipo Impianto
Pavimento
Fonte Energetica
Metano
Acqua Calda
Centralizzata
Raffrescamento
Split
Infissi
Metallo
Serramenti
Mediocre
Persiana
Tapparella PVC
Cantina - Solaio
Cantina
Accessori
Aria Condizionata, Ascensore, Cancello Elettrico, Porta Blindata, Ripostiglio
Novara a pochi passi dal centro storico interessante appartameto sito al quinto ed ultimo piano da personalizzare internamente composto da ingresso soggiorno cucina abitabile ripostiglio zona notte camera da letto matrimoniale cameretta bagno due balconi doppia esposizione cantina Libero Subito!!!!!!!
L' Agenzia Prospettivecasa fa parte del Centro Immobiliare Novara - CONCLIENTE -. Concliente ti offre la forza unita di 9 Agenzie che lavorano in esclusiva per Te per offrirti un servizio unico sul territorio novarese. Se vuoi vendere o comprare una casa, un professionista del team Concliente sarà a tua disposizione personale. CONCLIENTE, LA PIU' VELOCE SQUADRA IN CITTA', 9 AGENZIE, 1 PROVVIGIONE. Visita il sito www. prospettivecasa.com www.concliente.it
VIALE DANTE 2 F, Novara (NO)
Cookie preference