Prospettivecasa il tuo punto di incontro
Italiano
2 Camere 2 Bagni 174,1 m2
Caratteristiche principali
Prezzo
58.000 EUR
Classe
F (282,72 [kWh/m²a])
Locali
3
Mq Giardino
1500
Mq Balcone
14,2
Altre caratteristiche e accessori
Stato Immobile
Come da Origini
Grado
Economico
Panorama
Vista Giardino
Piano
Piano Terra
Orientamento
Nord Est Sud
Totale Piani
Uno
Lati Liberi
3
Giardino
Privato
Arredi
Non Arredato
Tipo Soggiorno
Soggiorno
Tipo Cucina
Semi Abitabile
Riscaldamento
Autonomo
Fonte Energetica
Metano
Acqua Calda
Autonoma
Infissi
Legno
Serramenti
Da Sostituire
Persiana
Oscurante Legno
Pavim. Giorno
Cotto
Pavim. Notte
Cotto
Pavim. Cucina
Cotto
Pavim. Bagno
Ceramica
Accessori
Ripostiglio
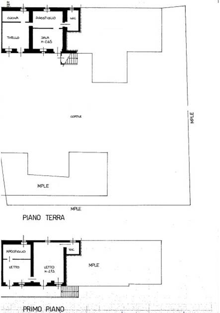
Casalvolone interessante soluzione semi indipendente da personalizzare internamente composta da piano terreno cucina tinello soggiorno bagno , mq 83 c.a , piano primo due camere bagno , mq 84,2 . Attigua all'immobile abbiamo al piano terreno un magazzino , mq 60 due portici , mq 61 , e al piano primo una legnaia , mq 60 . A completare la proprieta' abbiamo un ulteriore fabbricato con piano terreno magazzino , mq 21 , ripostiglio mq 16 , portico , mq 36, e al piano primo legnaia , mq 17 , e ripostiglio , mq 29 , area cortilizia e giardino 1500 mq circa . Libero Subito
L' Agenzia Prospettivecasa fa parte del Centro Immobiliare Novara - CONCLIENTE -. Concliente ti offre la forza unita di 9 Agenzie che lavorano in esclusiva per Te per offrirti un servizio unico sul territorio novarese. Se vuoi vendere o comprare una casa, un professionista del team Concliente sarà a tua disposizione personale. CONCLIENTE, LA PIU' VELOCE SQUADRA IN CITTA', 9 AGENZIE, 1 PROVVIGIONE. Visita il sito www. prospettivecasa.com www.concliente.it
VIA ROMA 31, Casalvolone (NO)
Cookie preference